Bureaux
Près de Charest
Disponible
Yvon Guérard
Tél. : 418 948-1224418 948-1224
yguerard@immeublessimard.com
Information location mini-entrepôts : 418 687-4422
entreposagest-sacrement.com

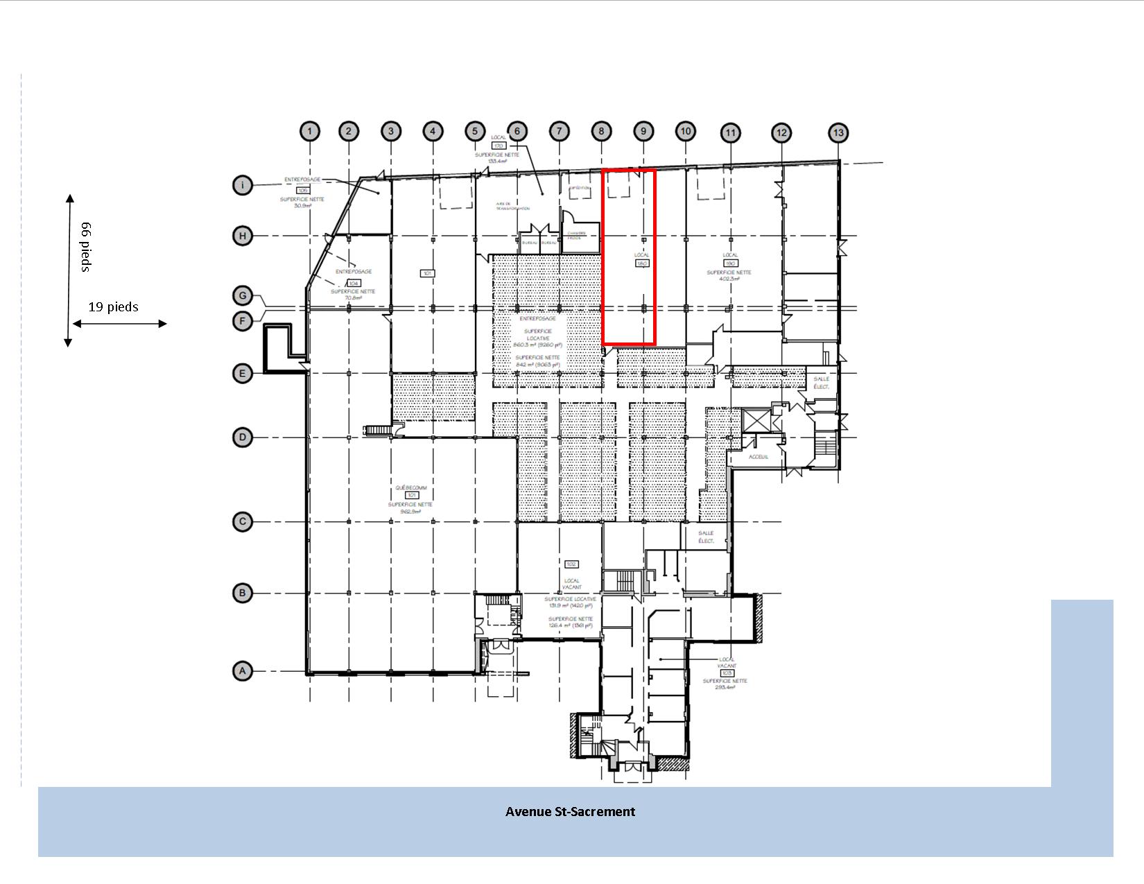
Très beau local de 2 202 p.c. bénéficiant d’un bel éclairage naturel puisque pourvu de grande fenêtre. Réception, bureaux fermés, aire ouverte, cuisinette.
Cet immeuble dont la façade a été refaite à neuf est idéalement situé aux portes du Parc industriel Saint-Malo, à mi-chemin entre les boulevards Charest et Wilfrid-Hamel. Nous offrons à nos locataires 70 000 pi2 de locaux climatisés, ainsi qu’un vaste stationnement gratuit.
214, avenue Saint-Sacrement
Québec QC G1N 3X6