Bureaux
Lévis
Disponible






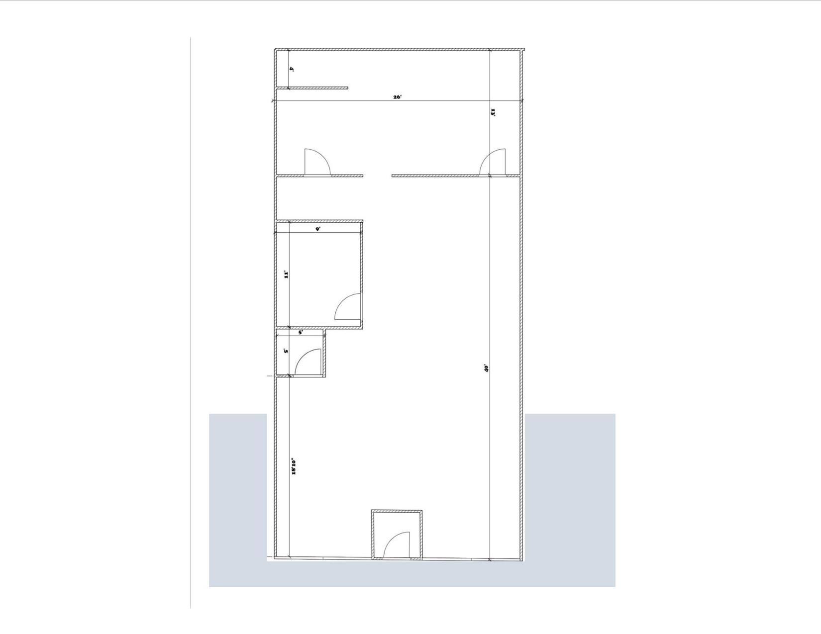
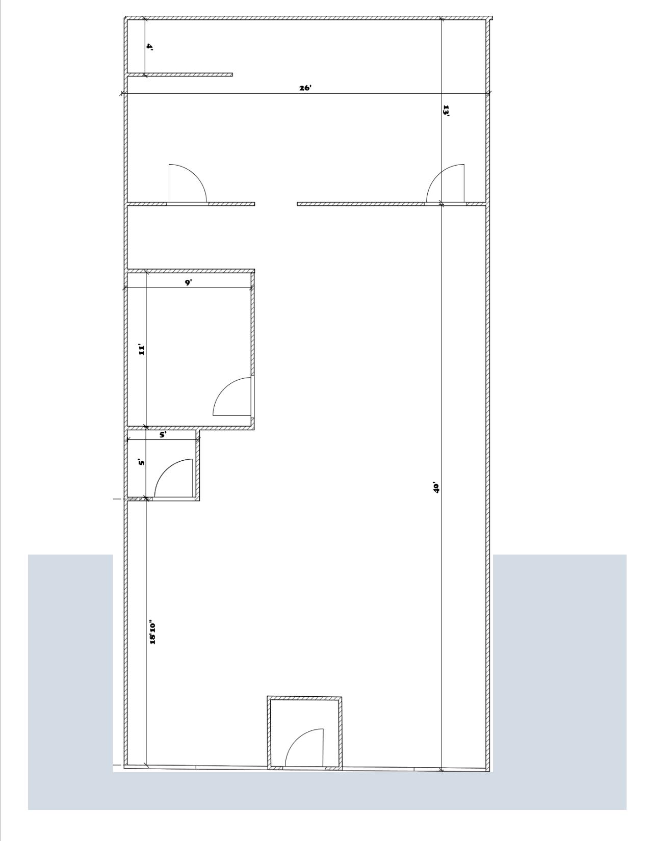
Local de 1 485 p.c. situé à Place Mgr Bourget, un centre commercial linéaire (strip) possédant une clientèle bien établie. Grande vitrine, accès privés à l’avant et à l’arrière.
À Lévis, principal pôle urbain et économique de la région Chaudière-Appalaches, la Place Mgr Bourget est particulièrement bien située. Une dizaine de commerces ayant pignon sur rue y offrent à leurs clients différents produits et services, dont plusieurs de restauration.
Accessible de l’autoroute 20 via Mgr-Bourget, à un carrefour où la circulation est importante, le centre bénéficie d’une visibilité considérable et est un arrêt de choix pour les consommateurs.
Entièrement rénovée et au cœur d’un quartier résidentiel en pleine ébullition, Place Mgr Bourget accueille une clientèle variée provenant entre autres du Cégep de Lévis, du parc industriel et du Complexe Desjardins.
7575, boulevard Guillaume-Couture
Lévis QC G6V 6Z1